4 bed Detached House

£600,000

Coningsby Road, Hawkinge, CT18

AVAILABLE

Gallery
Features
  • Stunning new build 4-bedroom detached home by prestigious Pentland Homes
  • Spacious large lounge – perfect for family living and entertaining
  • Modern kitchen-breakfast room with plenty of natural light
  • Separate formal dining room for elegant entertaining
  • Practical utility room and ground floor WC
  • Principal suite with walk-in dressing area and luxurious en-suite
  • Three further generous bedrooms and stylish family bathroom
  • Large rear garden – ideal for children and outdoor entertaining
  • Off-road parking plus garage
  • Eco-friendly inset solar panels
Description
FOR SALE WITH BURNAP + ABEL... Introducing an exceptional opportunity to acquire 15 Coningsby Road, a beautifully crafted 4-bedroom detached home built by the renowned Pentland Homes at the highly regarded Poppy Fields development in Hawkinge, Kent. Exuding refined elegance and contemporary sophistication throughout, this outstanding residence offers spacious living balanced with thoughtful design and premium appointments. Upon arrival, you're welcomed into a generous entrance hall leading to an impressive large lounge, ideal for both relaxed family evenings and stylish entertaining. The heart of the home is a beautifully designed kitchen-breakfast room, perfect for morning coffee and casual dining, while a separate formal dining room provides an elegant setting for more formal gatherings. Practicality and convenience are key with a well-appointed utility room and a ground floor WC completing the versatile accommodation on the lower level. Ascending the staircase to the first floor reveals four generously proportioned bedrooms, including a sumptuous principal suite featuring a walk-in dressing area and luxurious en-suite bathroom — a private sanctuary designed with comfort in mind. A stylish family bathroom serves the remaining bedrooms. Externally, the property boasts a large rear garden providing an excellent outdoor space for family life and entertaining alike. Off-road parking and a garage offer secure and convenient vehicle storage. Thoughtfully integrated inset solar panels underscore the home's eco-friendly credentials, enhancing sustainability and energy efficiency without compromising aesthetics. This remarkable home is offered with no onward chain and is ready to move into, presenting a rare chance to secure a contemporary luxury property in one of Hawkinge's most desirable new-build neighbourhoods.

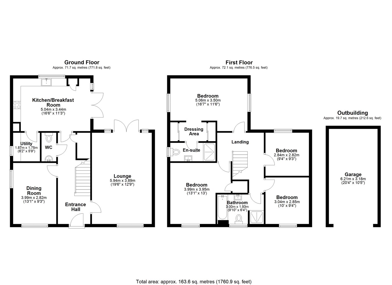
Ground Floor


Entrance Hall


Lounge
19' 6" x 12' 9" (5.94m x 3.89m)

Dining Room
13' 1" x 9' 3" (3.99m x 2.82m)

Kitchen/Breakfast room
16' 6" x 11' 3" (5.03m x 3.43m)

Utility Room
13' 1" x 9' 3" (3.99m x 2.82m)

W.C


FIRST FLOOR


First Floor Landing


Principle Bedroom
16' 7" x 11' 6" (5.05m x 3.51m)

Dressing Room


En-Suite


Bedroom Two
13' 1" x 13' 0" (3.99m x 3.96m)

Bedroom Three
10' 0" x 9' 4" (3.05m x 2.84m)

Bedroom Four
9' 4" x 9' 3" (2.84m x 2.82m)

Bathroom
9' 10" x 6' 4" (3.00m x 1.93m)

OUTSIDE


Rear Garden


Garage
20' 4" x 10' 5" (6.20m x 3.17m)

Off Road Parking
Floorplans
Agent Details

Burnap & Abel (Folkestone)

Burnap & Abel (Folkestone)


4 Majestic Parade
Sandgate Road
Folkestone
Kent
CT20 2BZ


Powered by Apex27